Castello in vendita a Bogliasco

In vendita
Castello
Bogliasco
1.625.574 €
Descrizione
ASTA GIUDIZIARIA
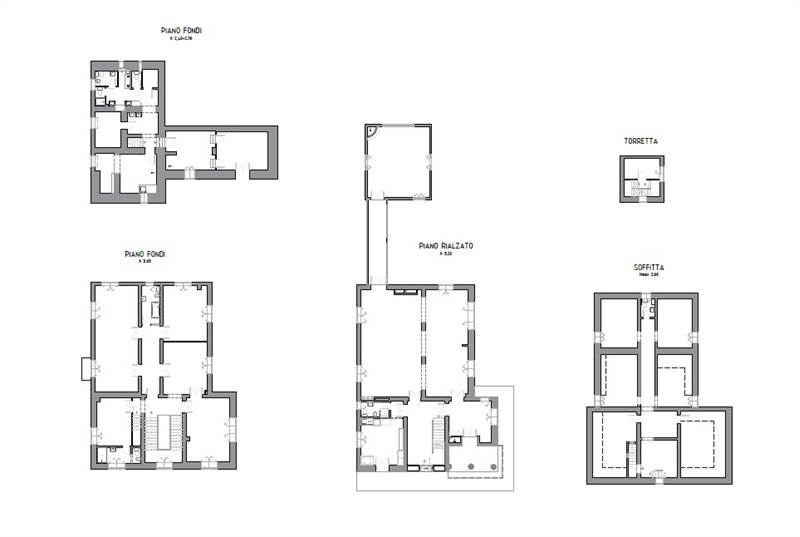
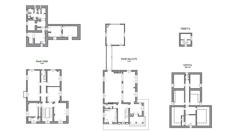
Castello ubicato a Serra Riccò (GE) - Via Ponte , Fabbricato ad uso civile abitazione denominato Castello di San Cipriano, posto ai piani fondi, rialzato, primo e soffitte, composto da 22 (ventidue) vani catastali e torretta L'immobile viene posto in vendita per il diritto di Proprietà (1/1) Destinazione urbanistica: L'im-mobile è inserito in zona EA ZONA DI PARTICOLARE INTERESSE STORICO/AMBIENTALE, e da n. 6 terreni.
Lo studio FERDENZI promuove servizi di consulenza ed assistenza specializzata a chi è interessato ad acquistare un immobile tramite asta giudiziaria. Indaghiamo in modo approfondito ogni aspetto della pratica in esame, cercando e valutando anche gli aspetti più nascosti, che possono però influire in modo fondamentale sulle scelte del nostro cliente e sulla buona riuscita dell'operazione. Nel caso in cui il cliente decida di acquistare mettiamo a sua disposizione, durante ogni fase dell'operazione, tutto il supporto e le competenze dei nostri specialisti di settore. Ti aiutiamo a risparmiare fino al 50% sull'acquisto della casa. GARANZIA “SEMPRE CON TE”. Affidati allo studio tecnico immobiliare Ferdenzi ed avrai sempre al tuo fianco una persona esperta ed affidabile che saprà come affrontare le diverse criticità e che si dedicherà unicamente alla protezione dei tuoi interessi. PERCHÉ ACQUISTARE UN IMMOBILE ALL'ASTA CON NOI? Acquistare un immobile tramite asta è estremamente vantaggioso. 
Spesso però le informazioni riguardanti tali beni non sono complete o aggiornate e possono indurre in errori di valutazione. Grazie alla nostra ventennale esperienza nel settore siamo in grado di acquisire informazioni utili per evitare acquisti non convenienti o poco sicuri per i nostri clienti. 
Il nostro intento è far spendere il meno possibile al cliente. CHIAMA SUBITO LO STUDIO PER FISSARE LA TUA CONSULENZA.
Caratteristiche principali
Codice:
A433K24 G
Città:
Bogliasco
Categoria:
Castello
Locali:
22
Mq:
763
Classe energetica:
F
Mappa
VIA FRITALLO, 1 - Bogliasco (GE)
Planimetrie
Cookie preference