Appartamento in vendita a Castell'Arquato

In vendita
Appartamento
Castell'Arquato
238.000 €
Descrizione
ASTA GIUDIZIARIA
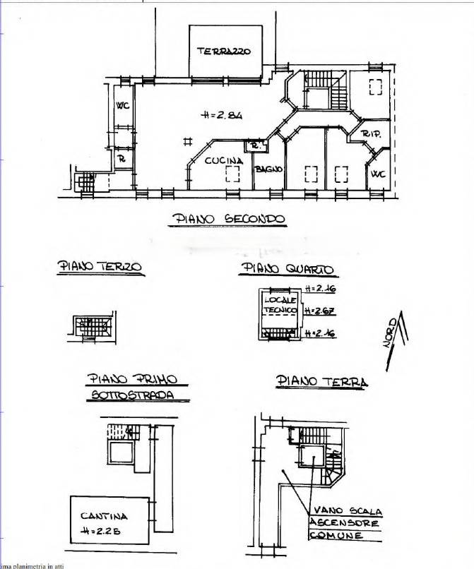
Piena proprietà di unità immobiliare ad uso residenziale, di tipologia appartamento mansardato, posto al secondo ed ultimo piano di un fabbricato condominiale denominato “condominio san carlo” dotato di doppio accesso mediante corpi scala separati, entrambi serviti da ascensore, sita nel comune di castell’arquato (pc), via dante alighieri n. 37 e n. 41. l’unità immobiliare si compone di due ingressi, soggiorno con camino, cucina, tre camere da letto, tre bagni, tre ripostigli e terrazzo. costituiscono pertinenze dell’abitazione un locale tecnico, ubicato al quarto piano e accessibile direttamente mediante scala interna, nonché un vano cantina posto al piano interrato.
Lo studio FERDENZI promuove servizi di consulenza ed assistenza specializzata a chi è interessato ad acquistare un immobile tramite asta giudiziaria. Indaghiamo in modo approfondito ogni aspetto della pratica in esame, cercando e valutando anche gli aspetti più nascosti, che possono però influire in modo fondamentale sulle scelte del nostro cliente e sulla buona riuscita dell'operazione. Nel caso in cui il cliente decida di acquistare mettiamo a sua disposizione, durante ogni fase dell'operazione, tutto il supporto e le competenze dei nostri specialisti di settore. Ti aiutiamo a risparmiare fino al 50% sull'acquisto della casa. GARANZIA “SEMPRE CON TE”. Affidati allo studio tecnico immobiliare Ferdenzi ed avrai sempre al tuo fianco una persona esperta ed affidabile che saprà come affrontare le diverse criticità e che si dedicherà unicamente alla protezione dei tuoi interessi. PERCHÉ ACQUISTARE UN IMMOBILE ALL'ASTA CON NOI? Acquistare un immobile tramite asta è estremamente vantaggioso. Spesso però le informazioni riguardanti tali beni non sono complete o aggiornate e possono indurre in errori di valutazione. Grazie alla nostra ventennale esperienza nel settore siamo in grado di acquisire informazioni utili per evitare acquisti non convenienti o poco sicuri per i nostri clienti. Il nostro intento è far spendere il meno possibile al cliente. CHIAMA SUBITO LO STUDIO PER FISSARE LA TUA CONSULENZA.
Caratteristiche principali
Codice:
A18K25 24/03/2026
Città:
Castell'Arquato
Categoria:
Appartamento
Locali:
9
Camere:
3
Bagni:
3
Mq:
241
Classe energetica:
G
Mappa
Via Dante Alighieri, 37 - Castell'Arquato (PC)
Cookie preference