Villa in vendita a Monticelli d'Ongina

In vendita
Villa
Monticelli d'Ongina
77.867 €
Descrizione
ASTA GIUDIZIARIA
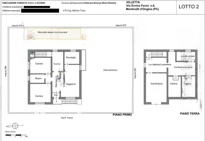
Piena proprietà di fabbricato residenziale unifamiliare indipendente da cielo a terra in Comune di Monticelli d'Ongina (Pc), via Enrico Fermi n. 6.
Lo studio FERDENZI promuove servizi di consulenza ed assistenza specializzata a chi è interessato ad acquistare un immobile tramite asta giudiziaria. Indaghiamo in modo approfondito ogni aspetto della pratica in esame, cercando e valutando anche gli aspetti più nascosti, che possono però influire in modo fondamentale sulle scelte del nostro cliente e sulla buona riuscita dell'operazione. Nel caso in cui il cliente decida di acquistare mettiamo a sua disposizione, durante ogni fase dell'operazione, tutto il supporto e le competenze dei nostri specialisti di settore. Ti aiutiamo a risparmiare fino al 50% sull'acquisto della casa. GARANZIA “SEMPRE CON TE”. Affidati allo studio tecnico immobiliare Ferdenzi ed avrai sempre al tuo fianco una persona esperta ed affidabile che saprà come affrontare le diverse criticità e che si dedicherà unicamente alla protezione dei tuoi interessi. PERCHÉ ACQUISTARE UN IMMOBILE ALL'ASTA CON NOI? Acquistare un immobile tramite asta è estremamente vantaggioso. Spesso però le informazioni riguardanti tali beni non sono complete o aggiornate e possono indurre in errori di valutazione. Grazie alla nostra ventennale esperienza nel settore siamo in grado di acquisire informazioni utili per evitare acquisti non convenienti o poco sicuri per i nostri clienti. Il nostro intento è far spendere il meno possibile al cliente. CHIAMA SUBITO LO STUDIO PER FISSARE LA TUA CONSULENZA.
Caratteristiche principali
Codice:
A47K24L2 05/02/2026
Città:
Monticelli d'Ongina
Categoria:
Villa
Locali:
7
Mq:
148
Classe energetica:
G
Mappa
Via fermi, 6 - Monticelli d'Ongina (PC)
Planimetrie
Cookie preference